
Médanos Patagonia es un proyecto de turismo ecológico cuyo diseño ha implementado ideas y estrategias innovadoras que están surgiendo en el debate internacional sobre la urgencia de reajustar las relaciones entre los sistemas económicos, sociales y medioambientales. Esta obra es la realización de dos proyectos: un proyecto de arquitectura basado en la construcción sostenible y un proyecto de ecoturismo basado en la conservación.
Estos proyectos se reúnen dentro de en una reserva marina protegida sobre la costa noreste de la Patagonia, ofrecen un programa integral que promueve la conservación del medioambiente, así como la creación de oportunidades para el crecimiento sostenible y el desarrollo económico de la comunidad local.
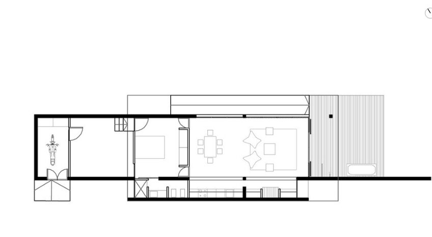
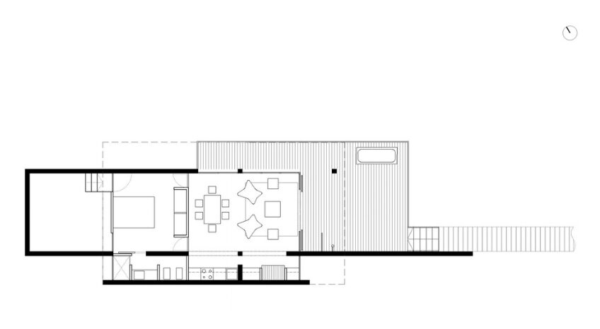
Una consideración fundamental fue conseguir un bajo impacto sobre la topografía. En lugar de un gran volumen macizo, Médanos Patagonia consta de pequeñas cabañas de baja altura construidas en plataformas elevadas sobre pilotes. Otra consideración importante en esta zona árida fue el reciclaje del agua. Estrategias de baja tecnología y también por sistemas de bajo consumo energético se utilizan para abordar los fuertes vientos y temperaturas extremas
De las seis casas construidas, tres de ellas corresponden a una misma tipología, singularizadas por un muro sobre la fachada sur que se extiende para proteger la terraza de los fuertes vientos que vienen de esta orientación. Las otras tres casas son diferentes, cada una con sus particularidades, pero siempre se priorizan las vistas hacia el mar manteniendo un lenguaje y materiales comunes en todas las unidades.












































