Rubro : Arquitectura / Casas
Proyecto y Dirección : OADD arquitectos (Arq. Andrés Barone, Arq. Fabricio Contreras Ansbergs & Arq. Jorge Báez Moore)
Colaboradores : Calculo Estructural: arq. Darío Márquez
Año : 2023
Superficie : 90
Fotografía : Bruto Studio
Ejecución de obra : JC Construcciones

El PH Helguera es un significante arquitectónico del cambio: una vivienda que ha evolucionado hacia una propuesta integral radical.

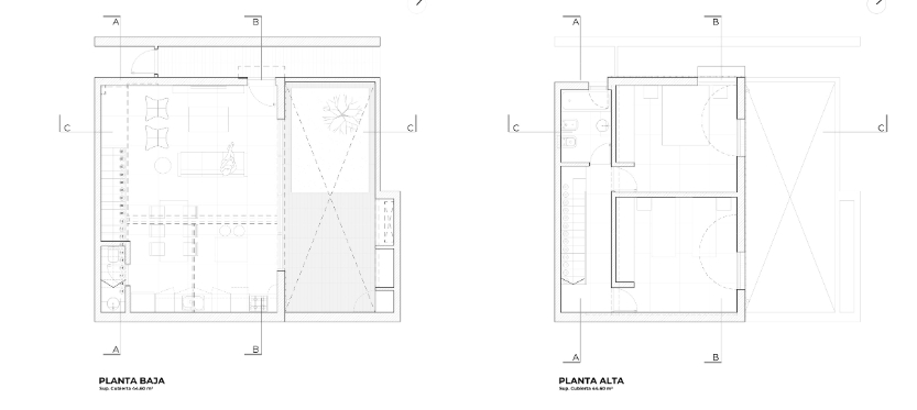
El desafío fue transformar completamente el antiguo PH, que funcionaba como carpintería. Modificar la estructura original (recintos oscuros) por espacios llenos de luz que dieran a un gran vacío, un patio longitudinal desde una impronta contemporánea y acogedora.

La idea de un patio que articule la planta social (estar comedor cocina) con la parrilla, permite un fluido desarrollo tanto de las actividades diarias y domésticas de la vivienda como de reuniones sociales más amplias. Esto conlleva a separar los dormitorios de la planta baja, en un plano superior para mejorar las condiciones de iluminación y privacidad. Como corolario programático, se crea una gran terraza que funciona como un catalizador de actividades al aire libre.

El lenguaje del PH remite a los antiguos muros de ladrillo que lo componían, generando una solución constructiva estética contundente y una realidad material que se muestra en su calidad estereotómica más genuina. La simple condición de apilar mampuestos, ayudó a crear una envolvente rugosa de color pregnante, liberando el interior a un liso color blanco. A esta condición de diseño la llamamos “paradigma del coco” y opera en una dialéctica constante de contrastes sensoriales y de diferencias temporales. De esta manera, integramos la preexistencia como germen de lo nuevo, la reinterpretación y la relectura como una herramienta indispensable de diseño.

Características
Reviews
There are no reviews yet, why not be the first?
Leave a review
Criteria 1: Criteria 2: Criteria 3:

Deja una respuesta

Tu dirección de correo electrónico no será publicada. Los campos obligatorios están marcados con *


El periodo de verificación de reCAPTCHA ha caducado. Por favor, recarga la página.

Listados relacionados