
Casa entre edificios del estudio G+H arquitectos se desarrolla en un pequeño solar urbano de la ciudad de Rosario, Argentina. El proyecto se ubica a metros de la intersección de dos calles, entre dos edificios, el primero de ellos en esquina con una altura de 30mts y el segundo de escala mediana de 19mts de altura. En dicho solar existía una vivienda típica de nuestra trama urbana, de tipología chorizo que databa de 1920. En la vereda, en relación directa al terreno se implantan dos plátanos de aproximadamente 30mts de altura. Es inevitable describir este proyecto sin antes entender las preexistencias del sitio, ya que son estas las que marcan fuertemente su directriz.
Cuando la ciudad aprieta, los espacios en respuesta se apilan y fluyen verticalmente.
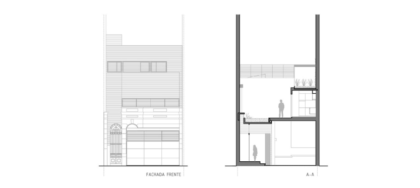
La vivienda se plantea en tipología de triplex para dar una respuesta programática. Esta característica brinda la posibilidad de generar espacios interiores y exteriores que ganen ventilaciones e iluminación natural. Además, se plantea verticalmente para dialogar con las escalas urbanas que la rodean, con sus edificios linderos y los árboles de su frente.
Una pieza de hormigón que se pliega sobre si misma, se encastra en el espacio entre los edificios y se posa sobre la vivienda preexistente, completando el vacío urbano. Esta pieza es estructura y cerramiento al mismo tiempo y es a su vez lenguaje de la obra. Se elige el hormigón armado como estrategia constructiva para resolver grandes luces. De esta forma, se obtiene la posibilidad de construir losas de medianera a medianera y generar así, plantas libres, flexibles y versátiles.
La planta baja se plantea como un gran espacio de usos múltiples -cochera, quincho, lavadero, guardado, taller-. Esto se logra a partir de vaciar la casa existente y completar el espacio donde se encontraba el patio de la misma con una cinta de hormigón. Esta se pliega tomando diferentes formas en respuesta a las distintas necesidades: es escalera en planta baja y es patio, cantero y pileta en primer piso.
El primer piso es el corazón de la casa; estar, cocina y patio conviven en un dialogo directo y continuo. La división entre el interior y el exterior se plantea a través de grandes aventanamientos que aseguran la continuidad visual de los espacios y que al abrirse totalmente también dan lugar a una conexión física sin límites. Así, convierten el espacio cubierto en semicubierto.
En segundo piso se da lugar al ámbito de lo privado. Los núcleos húmedos se ubican sobre las medianeras y condicionan lo menos posible la distribución de la planta. De esta manera, las habitaciones quedan divididas por tabiquería que permite futuras modificaciones. Se busca la versatilidad del espacio.
El proyecto busca dialogar con la escala urbana sin perder la escala doméstica. La verticalidad de la vivienda permite la simultaneidad y variedad de situaciones en un pequeño vacío que la densificación de la ciudad aún no había completado.



















e8vjc3
l7n5om
5ru68x
4dtnbg
l2asbr
mv8lt2