
A1486 se desarrolla sobre un lote entre medianeras en un tejido urbano consolidado del barrio de Chacarita.
La propuesta busca generar una vivienda que maximice la habitabilidad interior preservando la privacidad y optimizando la relación con el espacio exterior. La operación clave es la consolidación de un volumen compacto y austero hacia la calle, que se abre hacia un patio interior, donde se desarrolla un lenguaje más permeable y luminoso.
Desde su configuración y materialidad, la fachada se presenta como una pieza sólida con una envolvente de ladrillo tipo Cabildo colocado en forma vertical, que actúa como filtro visual y solar, generando un plano texturado que a la vez remite al lenguaje del barrio. El plano inferior blanco y ciego, materializado en chapa, enfatiza el gesto de un basamento que oculta los accesos y usos técnicos, liberando el protagonismo al plano de ladrillo.
Con respecto a sus interiores, el uso del ladrillo combinado con la nueva estructura metálica blanca genera un diálogo entre lo preexistente y lo contemporáneo.
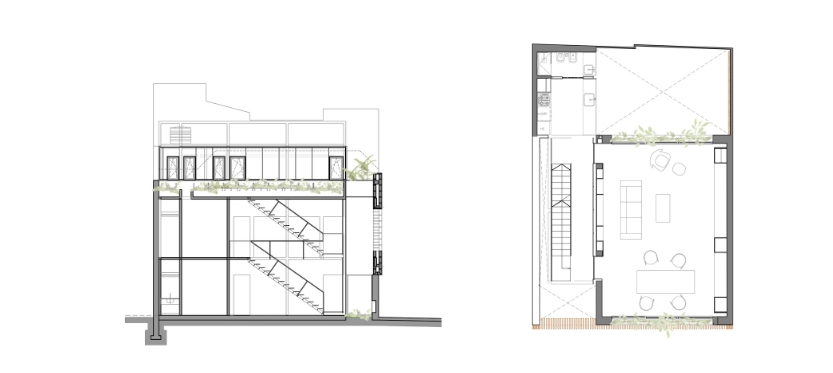
La escalera metálica es un gesto liviano, casi escultórico, que se integra a la rusticidad de los muros.
Se utiliza un sistema de fachada translúcida, que permite el ingreso de luz difusa durante el día y se comporta como una lámpara urbana por la noche.
El patio, por su parte, funciona como núcleo de iluminación y ventilación, conectando visualmente los diferentes niveles.
Desde su disposición, la vivienda, se organiza en tres niveles. En planta baja, se disponen los accesos, servicios y espacios de expansión. Mientras que, en los niveles superiores, se ubican los espacios privados y sociales, con una conexión visual al exterior y terrazas ajardinadas.
El diseño prioriza la flexibilidad, el uso de luz natural y la circulación fluida entre ambientes.



























