
SUMMERS | Architecture-Studio + Zas Lavarello
Jack Green, la innovadora empresa que desarrolla edificios corporativos, sustentables y de lujo, encargó este novedoso proyecto en el barrio de Palermo, Buenos Aires. Está liderado por Architecture-Studio, uno de los estudios más prestigiosos de Francia que cuenta en su portfolio con obras como el Parlamento Europeo, el Instituto del Mundo Árabe y el Parque Tecnológico de Shanghái. Tiene como estudio local asociado a Zas Lavarello. El edificio Summers de Jack Green será financiado en su totalidad por el futbolista Sergio «Kun» Agüero, quien además de aportar el capital, participó de todas las decisiones estratégicas del proyecto.
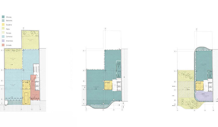
SUMMERS, es un edificio de oficinas de lujo pensado desde el interior hacia el exterior. Un espacio que interpreta, contempla y se adapta a nuevas modalidades de trabajo permitiendo a los usuarios disfrutar y optimizar sus espacios desde sus propias necesidades. Sobre un terreno de doble parcela en la calle Soler, el proyecto comienza por una serie de reflexiones acerca de la relación entre la autonomía de la obra y su relación con el contexto. El barrio de Palermo se sigue transformando y Summers conjugará la renovación de Palermo con la oferta de espacios adaptados a una nueva concepción acerca del trabajo.
Una imagen abstracta y sintética, de curvas sensuales y lúdicas contiene espacios que se adaptan a una continua necesidad de movimento. En esta propuesta, las escaleras, dejan su papel secundario para convertirse en protagonistas. Un tubo de ladrillo de vidrio envuelve la escalera y permite introducir luz natural en la parte más oscura de la planta. De esta manera, en un edificio de baja altura, circular por la escalera se convierte en un paseo agradable. La cirulación mécanica se resuelve con dos unidades de ascensor de última generación marca HYUNDAI.
Los interiores del edificio están materializados buscando generar un ambiente contemporáneo, para ello utilizan en el Hall de acceso un piso de madera Hunter Douglas (Moso), que además de ser ecológico tiene mayor durabilidad que otros de su tipo.
La piel del edificio compuesta de láminas verticales de vidrio se despega del suelo generando los accesos al hall y al local comercial. Las láminas de vidrio pivotan y permiten generar diferentes grados de apertura de la fachada. Este movimiento permite controlar la incidencia solar generando una piel dinámica que transforma la apariencia del edificio en los diferentes momentos del día.
Esto se logra con el detalle de la doble fachada de SUMMERS; primero una ventana que separa el interior del exterior DVH y una segunda piel que es la que termina dando toda la curva y que son los lamas. Esa segunda piel de vidrio es una carpintería metalica CASCIO.
Los espacios al aire libre se destacan en SUMMERS. Los balcones están pensados como espacios desde donde se pueda trabajar. Asimismo, la terraza verde se proyecta como un lugar común que se impone casi a mitad del eficio. Un espacio de relax, para compartir y disfrutar durante el día de trabajo.
Así, el edificio permite disfrutar del clima templado exterior, pero de ser necesario, posee un sistema de aire acondicionado Frio/Calor con un sistema de volumen de refrigeración variable (VRV) marca DAIKIN.
El proyecto cumple con los más altos estándares de sustentabilidad desde su concepción, utilizando métodos de construcción sustentable, tanto en sentido medio ambiental como arquitectónico. SUMMERS cuenta con Precertificación Leed Gold, por lo cual, esto significa entre otras cosas que el proyecto logrará un 41.86 % de ahorro energético y 48.81 % en consumo de agua.
Podés ver mas info acá: www.jackgreen.com.ar/























