
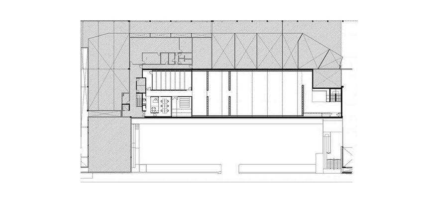
Este espacio cultural es el primero en su tipo en la región. Fue resuelto a la manera de un contenedor neutral construido en un primer piso de una estructura metálica existente.
Tiene como premisa la flexibilidad, reflejada en su capacidad de cambiar la organización espacial según los requerimientos específicos de la muestra -lo cual es esperable- pero le suma a esto la capacidad de mutación de la tienda. La utilización de paneles modulares de roca de yeso con estructura de perfiles galvanizados permite resolverlo correctamente.
Mirá opciones de construcción en seco acá.
La materialidad está puesta al servicio de la diferenciación de los espacios. La uniformidad del tratamiento de los cielorrasos con las instalaciones visibles y los pisos de tipo industrial es interrumpida para cualificar el sector de recepción y ventas -con madera de roble- diferenciándolo así de la panelería blanca del sector de exposiciones.
La iluminación, en palabras de uno de los arquitectos de KLM,
“fue uno de los mayores retos del encargo porque la luz tenía que ser homogénea pero, a la vez, debía destacar las obras”.
Se parte de un espacio sin luz natural, iluminado artificialmente en su totalidad. Se utilizó un sistema compuesto por tubos fluorescentes tipo “T5” distribuidos uniformemente que iluminan la cubierta. A éstos se le pueden incorporar proyectores si fueran necesarios.
Mirá opciones de iluminación acá.
Continúa leyendo sobre espacios culturales, haciendo click acá.















