
Superí 3226 | Alonso&Crippa
El edificio Superí 3226 se sitúa en una parcela de ancho típico y de escasa longitud de la ciudad de Buenos Aires (8,66 m de frente por 20 m de profundidad), en el barrio de Coghlan, caracterizado por el uso predominantemente residencial de baja densidad.
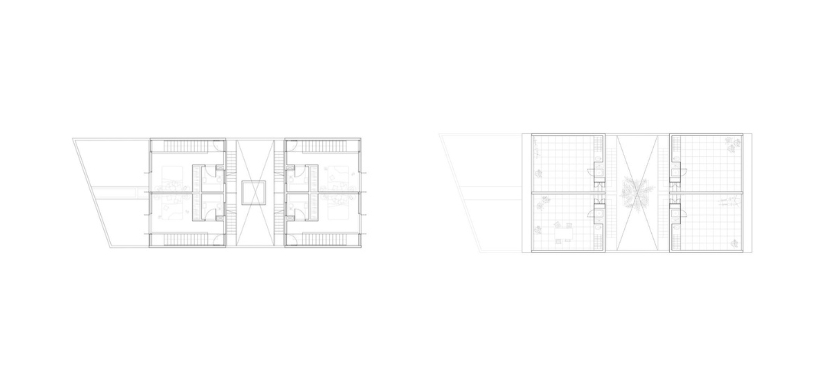
El proyecto agrupa seis viviendas modelando un edificio que se comporta de forma híbrida, variando su organización verticalmente.
Esa organización distingue dos tipos de viviendas, que tienen como factor común un dormitorio y una expansión propia que ocupa un tercio de la superficie total de cada unidad, propiciando actividades a cielo abierto.
Una circulación común de tamaño reducido y al aire libre, se compacta alrededor del bloque del ascensor para definir un patio elevado en el segundo nivel rematado por un árbol en lo alto que cualifica y articula el espacio de convivencia entre los vecinos.
La envolvente metálica de compacidad variable regula los intercambios entre interior y exterior, modificando su performance de acuerdo a las condiciones lumínicas, las sombras de los árboles y la acción de sus ocupantes.













wyw97w
hr7rjq
wmaxs0
2i0r83
njfwi5
y5bhdv