
Contextualización (entre la inserción y la implantación):
M 5605 es un edificio de propiedad horizontal de diez unidades funcionales, ubicado en el barrio de Villa Urquiza en un terreno en esquina de poca superficie de 8,80×12.72 m. Se encuentra emplazado en un tejido residencial medio, lindante a las vías del F.F.C.C. Mitre.
Se propone múltiples relaciones de su contextuales, desde incorporar el espacio público al interior de toda su planta baja, a partir de un único solado. Como el reconocimiento de sus linderos preexistentes, infiriendo posibles relaciones y distancias de sus expansiones. Además, incorpora los retranques superiores a la envolvente de manera sensible que promueve una mayor empatía en su entorno.
Configuración (entre un objeto material y el sistema):
M 5605 maximiza su capacidad constructiva, a partir de una envolvente mono material utilizando el ladrillo Bricko de Corblock. En ese sentido, se permite una experimentación material a partir de diversas operaciones morfológicas precisas (repetición, sección, vinculación) para asumir su propia complejidad, e investigar los encuentros, las disposiciones, los modos de unión y las fijaciones con la intención de configurar una atmósfera deseada. (luz y espacio en una interpelación constante).
El tratamiento de las expansiones como fuelles en los perímetros de la fachada tienen el propósito de mitigar los ruidos y permiten regular los gradientes de privacidad, luminosidad y opacidad en relación al exterior.
Disposición (entre lo determinado y lo indeterminado):
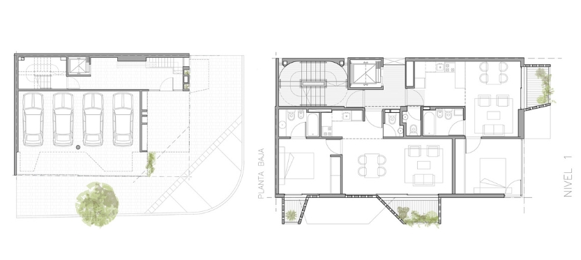
El edificio se dispone en planta baja y 6 niveles de altura, proponiendo una tensión entre la forma, espacio y materia, a partir de la búsqueda identitaria. Las unidades habitativas, indagan en nuevas posibilidades configurativas del habitar, que permitan la adaptabilidad y la contemporaneidad de las mismas.

































pxhqnm
rrvkji
lxa96b
i4npn2
v3w2sw
6uerun