
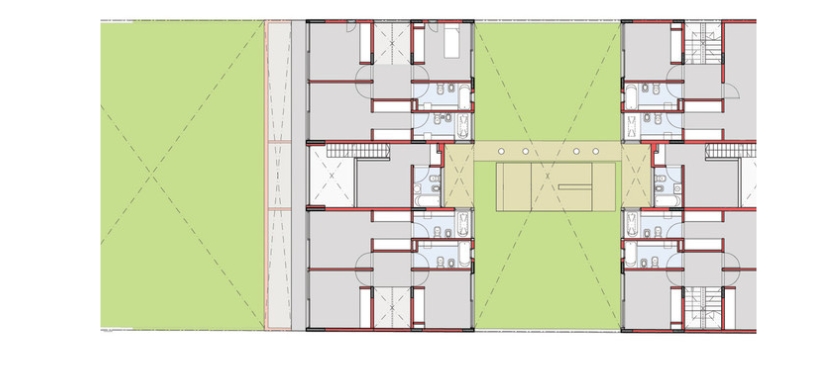
Le Bretón es un edificio de viviendas multifamiliares. Limitado por los bordes que generan dos tendidos ferroviarios con foco en las estaciones Coghlan y L. M. Drago y la Av. Congreso ( límite entre los barrios de Belgrano y Núñez ) se implanta este proyecto.
En un barrio pujante, al que las demoliciones por la construcción de la autopista no pudieron hacer desaparecer, caracterizado por sus diversas tipologías de vivienda -desde casas antiguas de una y dos plantas hasta edificios de departamentos en altura- calles tranquilas y arboladas junto a avenidas de tránsito rápido y fluido, Le Bretón da respuesta a su entorno con una fisonomía netamente contemporánea.
El rasgo principal de las ciudades contemporáneas es su diversidad social. Son las ciudades las que establecen la tensión, el contraste, los flujos y las dinámicas del presente. En las megalópolis de Sudamérica la realidad dibuja un complejo mapa social en el que ricos y pobres están separados por obscenos muros delgados o débiles infraestructuras como vías férreas o autopistas.
En ese territorio sin definición entre ciudad formal e informal, en ese borde, inestable y apasionante, está presente el pensamiento de mi oficina de arquitectura. Es en el debate dialéctico entre la realidad y los anhelos de la realidad, en el intersticio que este par permite, que proyecto mi obra.
Explorando variaciones a lo ya experimentado, investigando diferentes oportunidades programáticas, gestionando posibilidades y caminos que se presentan disponibles en los recortes de las ciudades sudamericanas contemporáneas. Alguien decía que “proyectar es hacerse una pregunta… una pregunta diferente en cada ocasión”. La pregunta es acerca del borde. De cómo operar en él.






















