
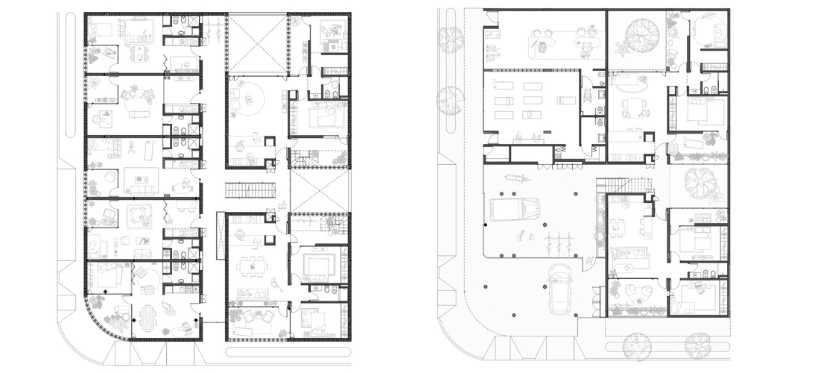
Chile 893 está ubicado en la ciudad de General Roca, provincia de Río Negro, en la Patagonia Argentina, una región caracterizada por su paisaje y su clima desértico con marcadas variaciones térmicas estacionales. En una antigua zona industrial de la ciudad, el edificio Chile 893 ocupa una esquina de 20 metros por 20 metros. De esta forma, se lo coloca en una situación particular dentro del tejido urbano y lo sitúa en un lugar estratégico para integrarse con la vida pública de la ciudad. Se ha concebido la planta baja del edificio como un espacio abierto borrando la línea que divide lo público de lo privado, integrando y amplificando el espacio público, fomentando el uso del mismo.
La disposición de las unidades funcionales del edificio se organiza en torno a dos patios internos, no solo para aprovechar al máximo la entrada de luz natural y el asoleamiento, sino también para contribuir al bienestar energético mediante estrategias de energía pasiva. En cuanto al desarrollo en sentido vertical, se sigue una lógica de base, desarrollo y coronamiento, donde la base como el coronamiento se convierten en espacios públicos. Así, se benefician tanto a los habitantes del edificio como a la comunidad de la ciudad.
Desdibujar el límite interior – exterior
El edificio cuenta con una terraza pública equipada con parrillas. A su vez, tiene dos terrazas privadas que ofrecen vistas panorámicas de 360 grados, resaltando la topografía de las bardas y valorizando el paisaje único de la región. La búsqueda espacial se apoya en el concepto de “exteriores dentro de interiores”.
Los exteriores, que están dentro de las unidades, se proyectaron con el fin de ser creados y definidos por los usuarios (patio-balcón), ya que se cierran al exterior del edificio (cribado) y se abren al interior como un espacio más del interior de las unidades funcionales. Se promueve una relación armoniosa entre ambos, una conexión más estrecha con el entorno exterior, un exterior propio de quien lo habita.
Las unidades habitacionales están concebidas para permitir la flexibilidad de usos, adaptándose a las necesidades y preferencias de sus habitantes. Las unidades “monoambiente” se articular por divisiones plegadizas que se despliegan para modificar los espacios según sea necesario. Estas unidades intentan dar soluciones a la diversidad de usos de múltiples estructuras familiares, como también a posibilitar un espacio laboral, y/o laboral habitacional, un modo combinatorio de ser habitado.
El ladrillo como material de construcción predominante
Se ha seleccionado el ladrillo debido a su disponibilidad local y la experiencia de la mano de obra en esta técnica. Actúa como una piel que recubre el exterior de las unidades. De este moda, funcionan también como parasoles en los balcones para regular la incidencia solar, especialmente en la cara más expuesta al oeste del edificio. Esta estrategia no solo contribuye a la reducción del consumo de aire acondicionado durante los calurosos veranos patagónicos, sino que también confiere carácter y autenticidad a toda la construcción, en armonía con el entorno geográfico y climático del lugar.
En este sentido, la sensibilidad en la exploración del material y sus posibilidades, confieren un resultado que se completa a través del paso del día y la incidencia de los rayos del sol sobre este cribado.


















ryjq8h
qx3upr
9v7lty
jsxfm3
ihz4kz
fv23hc