
Sucre 812 | Ana Smud y Alberto Smud
Desde el origen, el proyecto fue pensado a partir de tres ejes centrales: la relación entre los espacios de encuentro y los espacios de descanso, el vínculo entre las experiencias en espacios cubiertos y las zonas tradicionalmente abiertas, y por último los posibles diálogos graduales entre la transparencia y la opacidad generada en el frente del edificio, con un profundo desenlace en su interior.
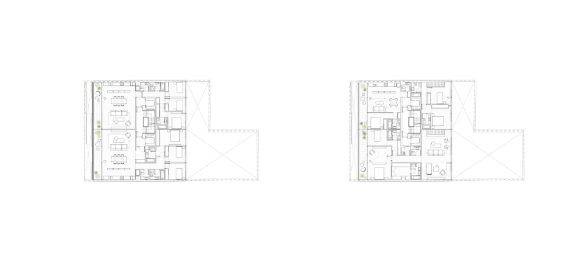
La planta del edificio se compone de dos departamentos por piso. En ellos, los espacios de encuentro (living y cocina integrados) fueron pensados hacia el frente, mientras que el contrafrente se destinó a los dormitorios. El diseño de la planta, no sólo en su distribución sino también en la atribución del tamaño para cada espacio, realza las experiencias compartidas y propicia nuevas formas de construcción de intimidad.
El living de cada vivienda toma el ancho completo de la unidad y se enlaza con una carpintería que posibilita la fusión con el balcón, construyendo un nuevo espacio transicional entre lo abierto y lo cubierto, entre el afuera y el adentro.
La fachada del edificio acompaña este proceso transicional: los paneles corredizos de tela tensada, mientras colaboran con el control térmico, lumínico, la absorción acústica y el ahorro energético, generan -a lo largo del día- diferentes diálogos entre quienes habitan la vivienda y el entorno que la contiene.













