
El edificio Donado 1655 se ubica en el nuevo barrio del Parque Donado Holmberg, en la Ciudad de Buenos Aires, en un terreno con dos frentes y una fachada de 26 metros de desarrollo sobre el corredor verde que define esta zona de la ciudad.
El proyecto se concibió a partir de dos ejes centrales. Por un lado, la relación entre el espacio exterior y los recorridos de acceso verticales y horizontales a las viviendas. Por el otro, los posibles diálogos entre el movimiento generado en la fachada del edificio, las viviendas y el parque público exterior.
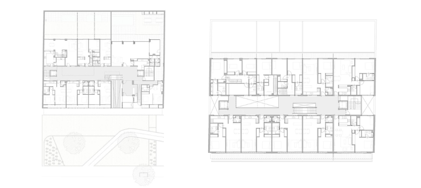
Cada una de las cinco plantas del edificio consta de 10 unidades a las que se accede a través de un patio longitudinal central cubierto que abarca los cinco niveles de altura, con un núcleo de escaleras lineales que se despliega hacia arriba y a lo largo del patio de acceso.
Dos volúmenes ensamblados por un conjunto de pasarelas translúcidas conectan el edificio formando un nuevo paisaje interior diferenciado, antes inexistente, donde las perspectivas se alargan dando lugar a espacios de encuentro.
Se trata de repensar las circulaciones comunes de los conjuntos habitacionales con una propuesta dinámica que define un espacio intermedio entre la calle pública abierta y la privacidad de cada vivienda individual.
En otras palabras, el recorrido propone a los habitantes una nueva aproximación a su vivienda, desde el parque público exterior pasando por un gran patio recorrido por pasarelas, escaleras, zonas de descanso y lugares de encuentro.
La fachada al parque, orientada al poniente, acompaña el proceso de transición a lo largo del día a través de parasoles corredizos de aluminio que contribuyen al control térmico y lumínico, la absorción acústica y el ahorro energético, generando experiencias diferentes entre los habitantes de la vivienda y el entorno circundante.




















6ixtaw
ccf5ds
26pscy
ouvb9n
z7sasq
ao2gyj